Website Preloader

ANATOLE FRANCE

Montreuil

Lieu : Bagnolet 93170
Projet : Construction de 2 maisons individuelles
Surface : 300 m2
Client : Privé
Statut : chantier en cours
Coût : NC

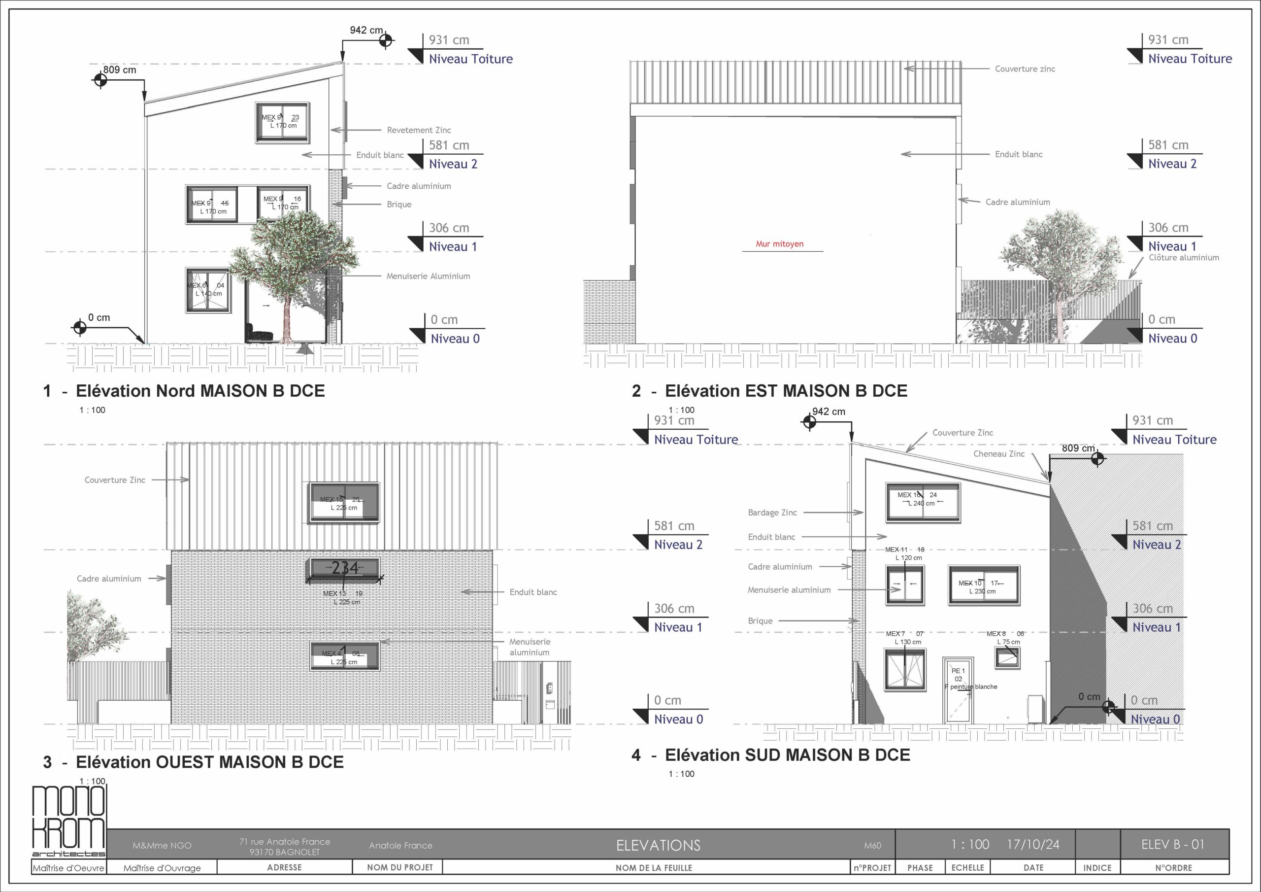
Le projet consiste à construire 2 maisons individuelles en R+1 + combles et de composer la toiture de manière à ce qu’elle s’intègre au mieux avec les avoisinants. Les toitures à un seul pan font référence aux maisons existantes dans une expression contemporaine en zinc. Les 2 toitures des maisons se croisent pour créer un rythme urbain dynamique. Le croisement des toitures permet que la maison située sur la 2e parcelle bénéficie d’un apport de lumières important tout au long de la journée.

 

Les 2 maisons sont de représentation architecturale similaires : Forme rectangulaire simple s’inscrivant sur la longueur des 2 parcelles entourées de 2 jardins d’agrément avec une place de parking couverte chacune.

Le parti architectural consiste à traiter les maisons comme une continuité des maisons avoisinant.

Les Façades en zinc et brique Beige sur la rue du Bac sont alignées dans le même rythme vertical que les maisons aux alentours.

Conception
Chantier
Existant
Conception
Chantier
Existant